272 Lakewood CourtEast Uniacke, NSB0N1Z0




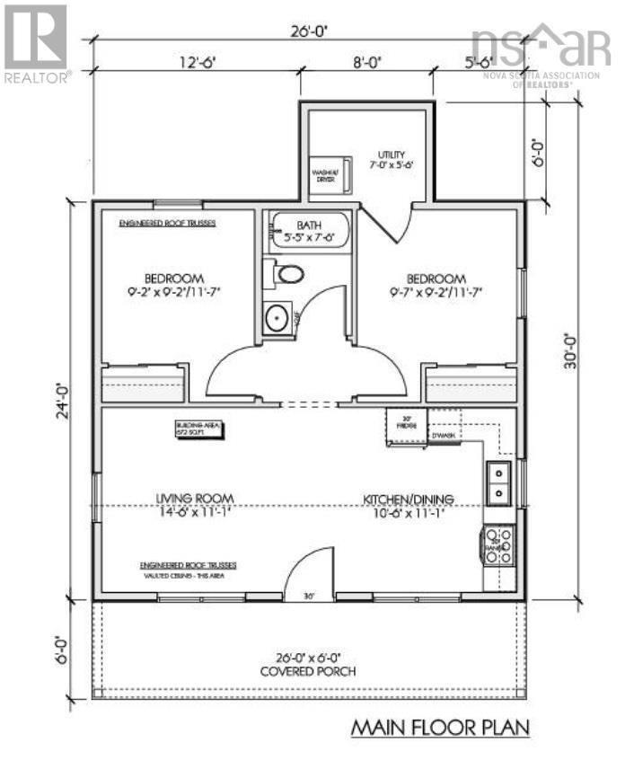
Have you dreamed of affordable living in your own house? We have the answer! Loon Point, in the Villages of Long Lake, an Lake Side Community in East Uniacke! Its just a short commute to the cities and airport. This Bare Land Condo has it all. You own your lot and everything on it, while the Condo Corp manages and maintains the roads, parks, trails and lake access points. They are even responsible to inspect your septic tank and clean it out if required. Yes every property owner has deeded access to the 3 private lake access points with their wharves, canoe, kayak, one even has a paddle board racks and boat launch. Undeveloped Lots start at approximately $67,500 and Homes start in the $300,000 price range. We offer many home designs suited to this development. We can also help design and build your custom home. This Cricket is a cozy Rancher. It is a 648 sq ft 2 bedroom home on a 1.4 acre lot. The House includes 2 comfortably sized bedrooms, a 4 piece bath, a utility/laundry room and a comfortable great room. Comfortable Cozy and very affordable. Call to book your appointment now (id:31684)
| 8 hours ago | Listing updated with changes from the MLS® | |
| 11 hours ago | Listing first seen on site |
The trademarks MLS®, Multiple Listing Service® and the associated logos are owned by The Canadian Real Estate Association (CREA) and identify the quality of services provided by real estate professionals who are members of CREA. Used under license.
The trademarks REALTOR®, REALTORS®, and the REALTOR® logo are controlled by The Canadian Real Estate Association (CREA) and identify real estate professionals who are members of CREA. These trademarks are owned or controlled by The Canadian Real Estate Association (CREA) and identify real estate professionals who are members of CREA (REALTOR®) and/or the quality of services they provide (MLS®).
This REALTOR.ca listing content is owned and licensed by REALTOR® members of The Canadian Real Estate Association.





Did you know? You can invite friends and family to your search. They can join your search, rate and discuss listings with you.